I acknowledge the Traditional Owners of the land and pay my respects to Elders past and present.
Space between built form and living ground
This portfolio guided by three intersecting principles: Kinetic (the dynamic forces of landscape), Mode (the cultural habits of living), and Tectonic (the craft of construction). The design approach is not about imposing form but about finding the balance between the living environment and the built object.
SELECTED WORKS

Return to Country
Developed with the Yung Balug Clan, this thesis reimagines the Lake Boort lunette as a cultural landscape of repatriation and ancestral connection.

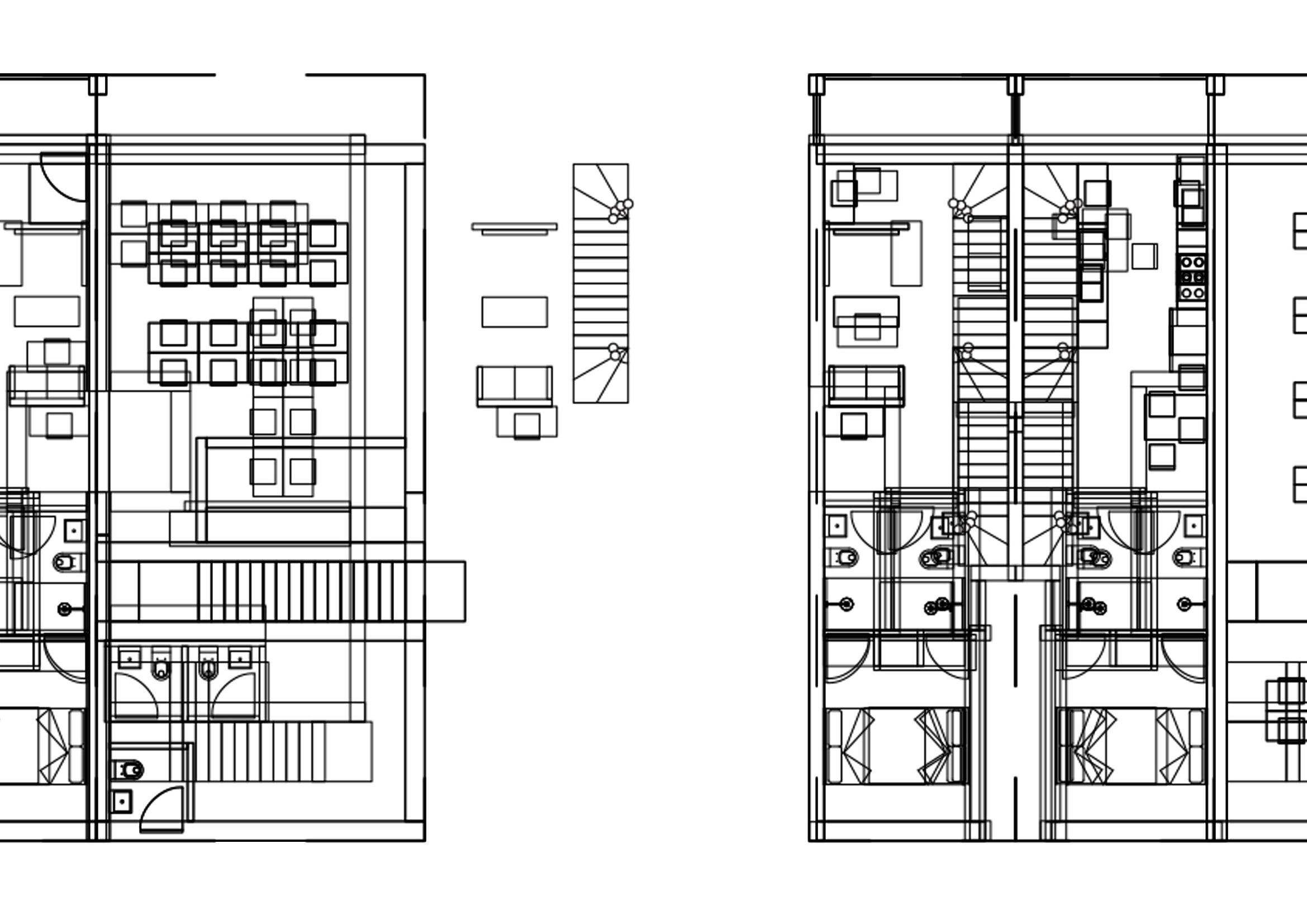
Biogenic Urban Housing
A housing prototype exploring the tectonic potential of biogenic hempcrete to remediate industrial soil and support multigenerational living.

Vertical Civic Fabric
A mixed-use typology that spirals public green space through the tower to create a continuous ecological connection within the Melbourne city.

Reading the Firelines
Geospatial research utilizing GIS modelling to visualize fire intensity and risk factors across the complex topography of the Yarra Ranges.
OBSERVATIONS
An observational archive capturing the light, textures, and atmospheric rhythms that shape our understanding of kinetic, mode, and tectonic.