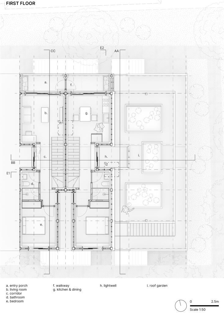
Low Rise Residential
Developed by Breathe Studio, the masterplan repurposes the industrial zone to address the current housing supply crisis. Building on this Sheppard Street masterplan, the studio allocated two housing lots and a community facility.
The goal of this design is to create multigenerational housing that is durable enough to be passed down through generations and breathable enough to support healthy, adaptable living across two building lots over future decades.
To achieve this level of liveability, hemp is selected for its biogenic properties, high indoor environmental quality, and versatility. Moreover, hemp plantation has the potential to revitalise the Merri Creek corridor by remediating the contaminated industrial-zone soils.

Neighbourhood

Merri Creek Country
Situated in Wurundjeri Country, Merri Creek history is prevalent on the site conditions.

Coburg North
The deindustrialisation of Coburg North has become an opportunity for housing.

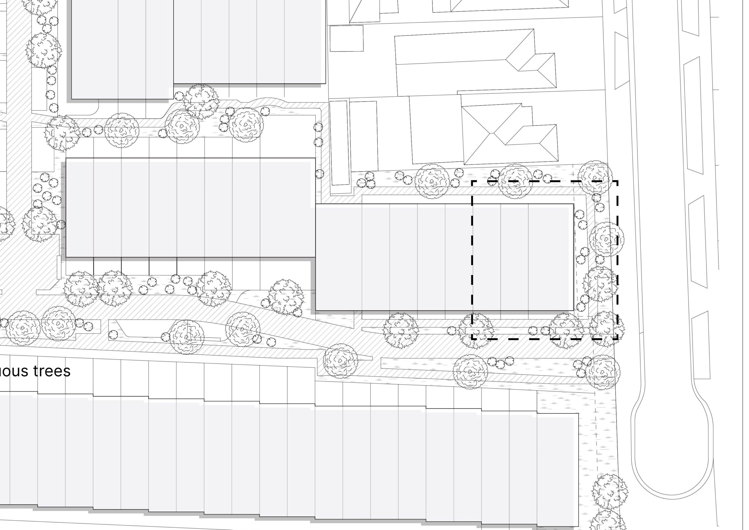
Sheppard Street
Based on master plan of Breathe, the site is allocated for low rise residential housing.
Tectonic

Durable
Durable materials are essential for multigenerational family housing. Metal elements are placed at the top and bottom of the building because those areas receive the most exposure to weather. Variations of hemp are used for the walls because of their longevity under passive natural weathering.

Hemp
As a phytoremediator, hemp is well suited to the climate of Victoria and can remediate contaminated industrial areas of the site. Given that hemp is a biogenic with low carbon emissions, there is significant potential for its use as a building material. Hemp presents a major opportunity for Country.
Breathable
The design embodies the properties of hemp building blocks and focuses on airtightness and vapour-diffusion performance.







Wurundjeri Woi Wurrung Country
Boort, Victoria, Australia
Design Studio E | 2025 Semester 2 | Francesco Stassi & Mark Casey-Losewitz
Site Area: 247.42 m²
Gross Floor Area: 374.74 m²
Height Change: +8.0 m